当前位置首 页 > 案例展示 >
案例展示

商用全热交换新风机餐厅安装项目

2019-09-13 00:00:00

       时下,消费者对于生活品质的要求不断提高,不仅对于家居生活环境有着严格的标准要求,对于公共场所的环境卫生以及空气质量也有很高的要求。因此,对于餐厅等人口密集的公共场所,安装新风系统就成为了非常迫切的一件事情,那么餐厅安装新风系统的必要性和可行性我们来分析下。

餐厅新风系统必要性

餐厅里面充斥着饭菜味,油烟味,酒精味,以及烟味,汗味,各种酒气,再加上饭店里人员流通大,导致外面的空气中大量的细菌,颗粒物涌入室内,还有装修材料散发出来的氨,甲醛等,导致了饭店内部的空气质量降低,沉闷,难闻,含氧量不足等情况。诸多有害的物质通过呼吸吸入到客人,就会危害到客人的健康,如果呆的时间太长还会引起恶心,胸闷,疲劳等症状。种种不良的状况将会导致饭店的客人流失。

餐厅新风系统可行性

新风系统是由送风系统和排风系统组成的一套独立空气处理系统,新风系统由新风机和管道配件组成,通过新风机净化室外空气导入室内,通过管道将室内空气排出,餐厅新风系统可以赶走室内的油烟味,煤气味,烟酒味,汗味,细菌等有害气体。提供新鲜的空气,在不用开窗的情况下,就可以进行空气室内外流通,享受到饭店内新鲜的空气。不用担心外面的灰尘进入餐厅里。防噪,可以让客人在安静的情况下用餐。


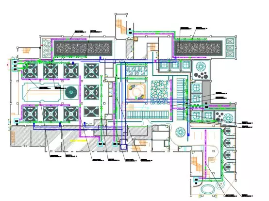
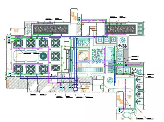
最近,我们在江苏省淮安市赢得多层餐厅新风系统合同,项目设计图纸如下:共两层,一共采用5000风量的全热交换机16台。根据餐厅的桌椅摆放和区域规划合理的放置新风主机的位置,力求达到每一个角落都能补充新风也能拍出浑浊空气。

一层


二层


施工后照片:



整个餐厅的新风系统的运行效果在试营业和后期正常营业中得到餐厅老板和顾客的一直好评,也给与净松新风高度评价。